粉料散裝機
發布時間:2024-6-7 16:03:50 閱讀:2030 次

一、概述:
SQ型粉料散裝機主要用于散裝水泥以及建材、冶金、煤炭、化工、糧食等部門粉狀物車、船裝卸。該機具有裝車全過程實現自動控制,工藝適應性強、無粉塵外揚、料滿指示可靠、結構簡單、造價低廉特點。
二、工作原理及特點
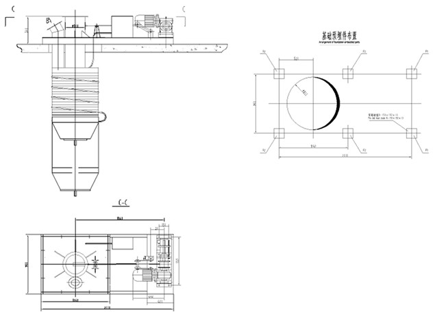
散裝汽車或其它運輸工具進入裝料位置后,按住控制柜上的“下降”按鈕,散裝下料錐斗下降至散裝容器的進料口后由松繩裝置和行程開關自動斷開升降電機電源。按“裝車”按鈕啟動,開關閥自動打開,進入裝車狀態,同時除塵器工作開始。
裝車時,散裝車中含塵氣體通過雙層伸縮軟管的夾層通道抽到收塵器內凈化。工作場地實現無塵作業。當物料容器已經裝滿時,料滿控制器向控制柜發出信號,立即關閉開關閥和料位風機,延時關閉除塵器,終止裝料。然后按“上升”鈕,使散裝下料錐斗提升到預定的位置自動停止,裝車全程結束。
備注:(開關閥、除塵器為選配設備,用戶根據具體情況選購)
三、示意圖
